Продажа дома

Тульская область, Мокрый Корь с.,

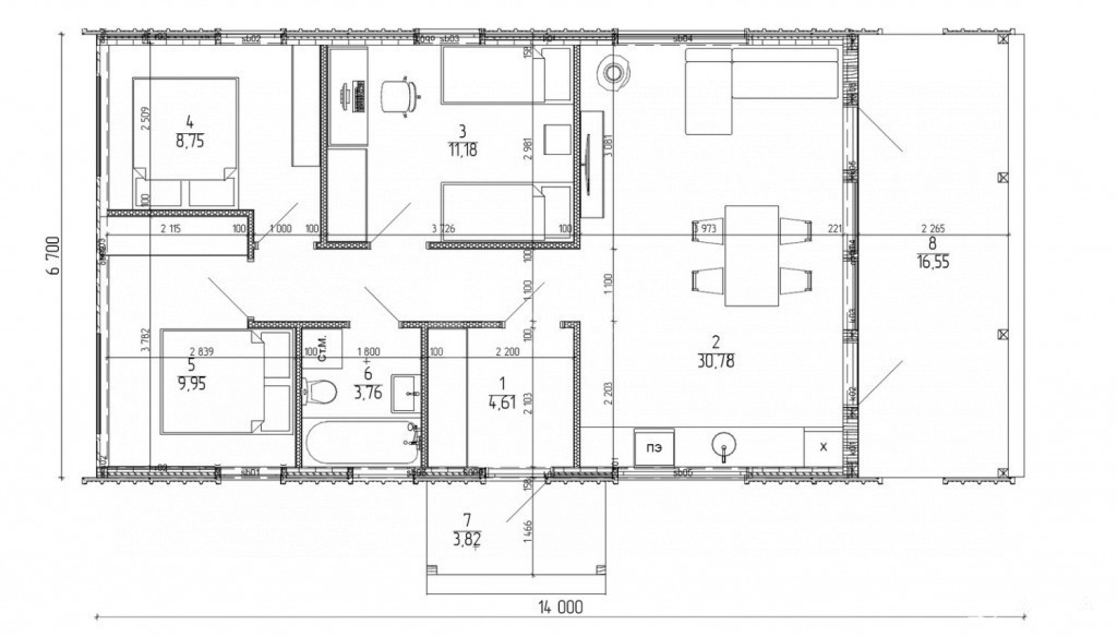
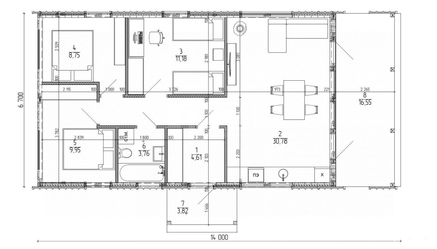
80 м²
Площадь
15 сот
Площадь участка
1/1
Этаж

4 000 000 ₽

50 000 ₽ за м²

ID объявления 11934474

Поделиться

Добавить в избранное

Арт. 114364510
Продаётся каркасный дом в стиле "барн" площадью 80 кв. м.

Возможен взаимозачет Вашей недвижимости!

Дом построен по каркасной технологии, фундамент - железобетонные сваи, утепление (кровля, пол, стены) 200 мм.
Дом можно приобрести в семейную ипотеку под 6% годовых. Также есть возможность приобрести в ипотеку без первоначального взноса (обсуждается индивидуально).

Работаем с ЭСКРОУ счетами!

С уважением,
Эверест Строитель Жилья

Дата обновления: 24 октября 2025