Продажа дома

Тульская область, д Скрипово, ул Березовая, 64

163 м²
Площадь
69,3 м²
Жилая площадь
18.70 м²
Площадь кухни
2
Этажность
9 сот
Площадь участка

7 400 000 ₽

45 539 ₽ за м²

ID объявления 12325161

Поделиться

Добавить в избранное

Арт. 90413452. Продается дом с участком 9 соток по цене квартиры!

ПОДХОДИТ ПОД СЕМЕЙНУЮ ИПОТЕКУ СО СТАВКОЙ - 6%.

ПОДХОДИТ ПОД СЕЛЬСКУЮ ИПОТЕКУ СО СТАВКОЙ - 3%.

Собственный дом для круглогодичного проживания с ремонтом под улюч! Уникальное предложение, где цена сравнима со стоимостью квартиры, а преимуществ — значительно больше.

Ключевые преимущества:

· Выгодные программы ипотеки: Возможно приобретение по семейной ипотеке (ставка 6%) или по сельской ипотеке (ставка 3%).
· Ремонт под ключ: Полностью готовое жилье. Состояние — «заезжай и живи»..
· Все коммуникации: Электричество 15 кВт, водоснабжение от собственного колодца, локальная канализация, отопление электрическими конвекторами, горячая вода от бойлера.

Характеристики дома:

· Технология: Каркасная.
· Фундамент: Бетонные заливные сваи.
· Стены: 290 мм — доска 150 мм, утеплитель 200 мм (Технониколь), ветро- и пароизоляция, внутренняя и внешняя отделка.
· Площадь участка: 10 соток.
· Ограждение: Участок огорожен забором из профлиста с воротами.
· Санузел: Полноценный, современный.

О самом доме:

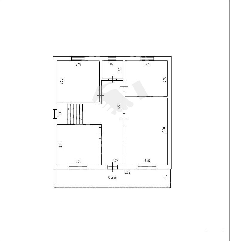
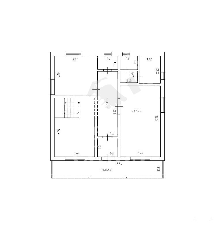
- Площадь дома - 162.5 кв.м;

- Планировка: 2-х этажный дом, с 6 спальнями, большой кухней гостинной, двумя терассами, раздельным санузлом, а также санузел на каждом этаже.

Дополнительно:

· Принимаются различные формы оплаты: наличные расчет, сертификаты.
· Дом идеально подходит для постоянного проживания.

Идеальное сочетание цены, комфорта и готовности к жизни. Отличный вариант для семьи.

Дата обновления: 20 декабря 2025