Продажа 1-комнатной квартиры

Тульская область, Тула г., Аркадия Шипунова ул., 1

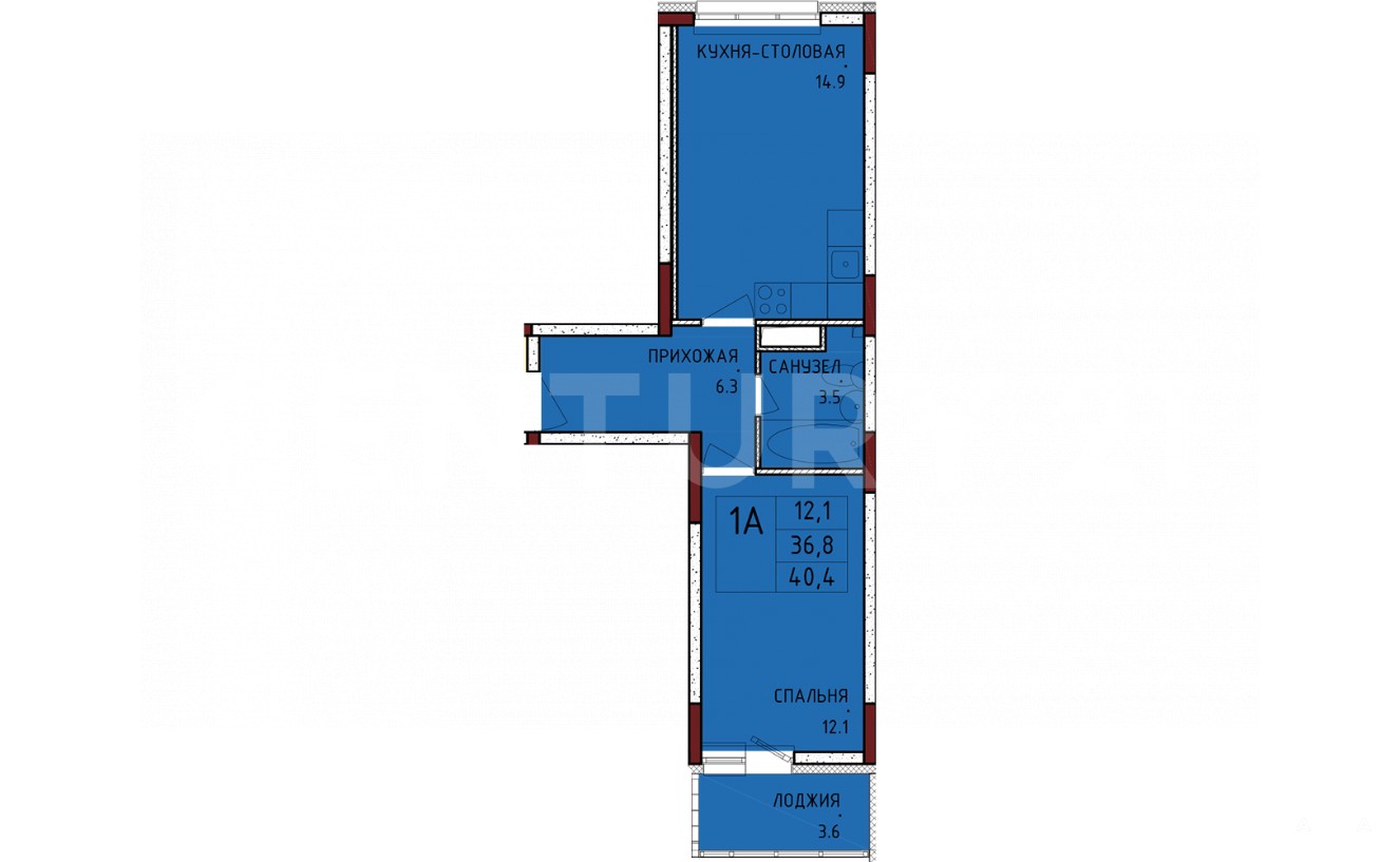
41 м²
Площадь
12 м²
Жилая площадь
15 м²
Площадь кухни
12/16
Этаж

5 300 000 ₽

130 865 ₽ за м²

ID объявления 12470848

Поделиться

Добавить в избранное

Венец. Срок сдачи 2 квартал 2026 года. Большая кухня и спальня с лоджией. Преимущества , которые делают планировку распашонка одной из самых востребованных и комфортных на рынке новостроек: Повышенный комфорт в летний период. Разнообразие видов из окон . Изолированность комнат. Визуальное расширение пространства. Максимальное естественное освещение в течении дня. Юридическая информация: Основание ДДУ. Без обременений. Полная стоимость в договоре. Один взрослый собственник.
Арт. 129849297

Дата обновления: 10 февраля 2026

Квартира От собственника