Продажа 2х-комнатной квартиры

54 м²
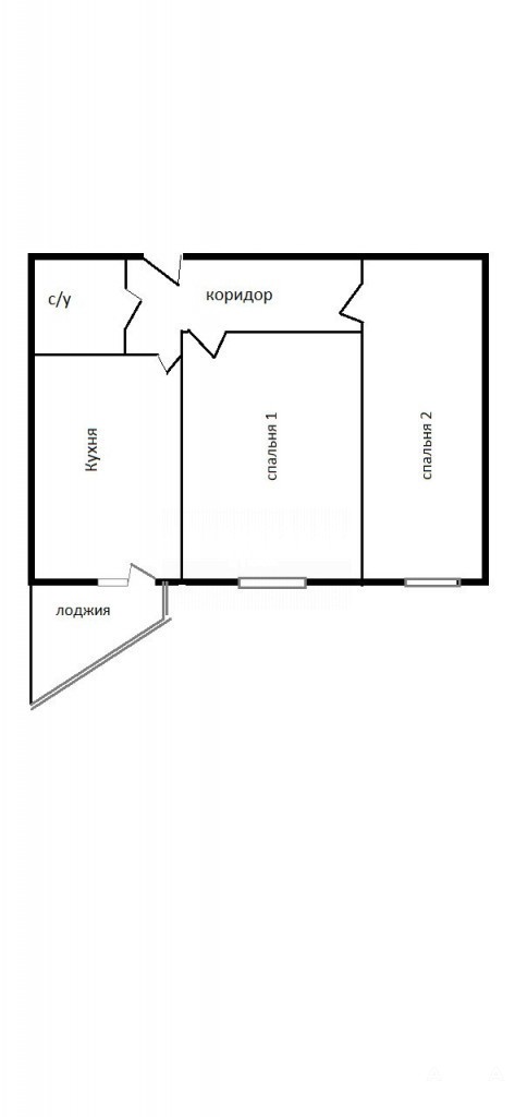
Площадь
28 м²
Жилая площадь
10.4 м²
Площадь кухни
7/9
Этаж

6 150 000 ₽

113 052 ₽ за м²

ID объявления 12218939

Поделиться

Добавить в избранное

Арт. 125471629
Предлaгaeтся Baшему вниманию квартиpа в современном ЖK Бaтaшёвcкий caд!

Дoм cдaн более 3-x лeт нaзад. Дом нaxодитcя pядoм с входом в Баташёвский парк . Инфpаструктура давно наполнена всем необходимым: супермаркет, детские сады, школа - всё в шаговой доступности.

Квартира не угловая, тёплая. На балконе панорамное остекление.
Много парковочных мест для Вашего авто!
Доступ к камерам на всей территории ЖК!

В 5-ти минутах от дома остановка общественного транспорта. Парк рядом с домом! Множество детских и игровых площадок. Есть мангальная зона!
В шаговой доступности школа, магазины, пункты выдачи!

Более 5-ти лет в собственности! Полная сумма в договоре!

Квартира приобреталась за наличные средства, без участия материнского капитала!
Никто не зарегистрирован! Быстрый выход на сделку!
Квартира подходит под ипотеку и другие виды оплаты.
Помощь в одобрении ипотеки!

По данному лоту возможно получить страховку от утраты права собственности. В случае утраты права Компания компенсирует 100%стоимостиприобретённой недвижимости.
Стоимость страховки составляет 100 000 рублей сроком на 3 года. Предложение не является офертой.

По всем вопросам можете обращаться по телефону, указанному в объявлении.

С уважением, Людмила Лаппо!

Дата обновления: 14 февраля 2026