Продажа 4х-комнатной квартиры

Тульская область, Барсуки п., Гоголя ул., 2

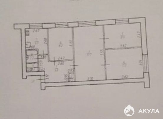
61 м²
Площадь
55 м²
Жилая площадь
6.2 м²
Площадь кухни
1/5
Этаж

2 400 000 ₽

39 152 ₽ за м²

ID объявления 12159873

Поделиться

Добавить в избранное

Арт. 111922400
Продаю 4-х комнатную квартиру на 1 этаже 5 этажного кирпичного дома. Большая площадь 61, 3 м2. К
вартира требует ремонта.
Рядом школа, сад, магазины, остановка общественного транспорта в шаговой доступности. До города 11 км, транспорт ходит часто, по расписанию.
В собственности более 5 лет.
Один взрослый собственник.
Подходит под любые сертификаты.
Звоните, подробности по телефону.

Дата обновления: 27 декабря 2025

Квартира От собственника